Jones Estate Agents

19 Moss Road, Waringstown BT66 7QY

Building Plot For Sale

Sale agreed £150,000

Print additional images & map (disable to save ink)

20250929_144339.jpg

Telephone:

028 3832 2244

View Online:

www.jonesestateagents.com/1041142

Key Information

Address 19 Moss Road, Waringstown
Status Sale agreed
Price Offers over £150,000
Land type Building Site

Additional Information

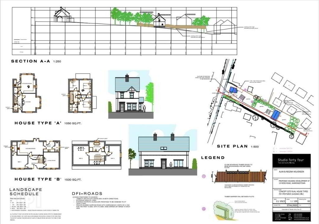
Exceptional Development Opportunity in Waringstown.

Situated on a highly sought-after address in the heart of the charming village of Waringstown, this superb site offers full planning permission for two detached dwellings.

The location combines village living with excellent convenience – close to local shops, schools, and transport links, while being within easy reach of Lurgan, Banbridge, and beyond.

With planning already secured, this represents an ideal opportunity for developers, builders, or those seeking to create bespoke family homes in a desirable residential setting.

Planning Application LA08/2023/1799/O
  • Jones Estate Agents

    Jones Estate Agents

    028 3832 2244

Photo Gallery

20250929_144339.jpg 20250929_144405.jpg IMG_9779.JPG IMG_9780.JPG IMG_9811.JPG Screenshot_20251001_134322_M365 Copilot.jpg

Visit www.jonesestateagents.com for further details.